









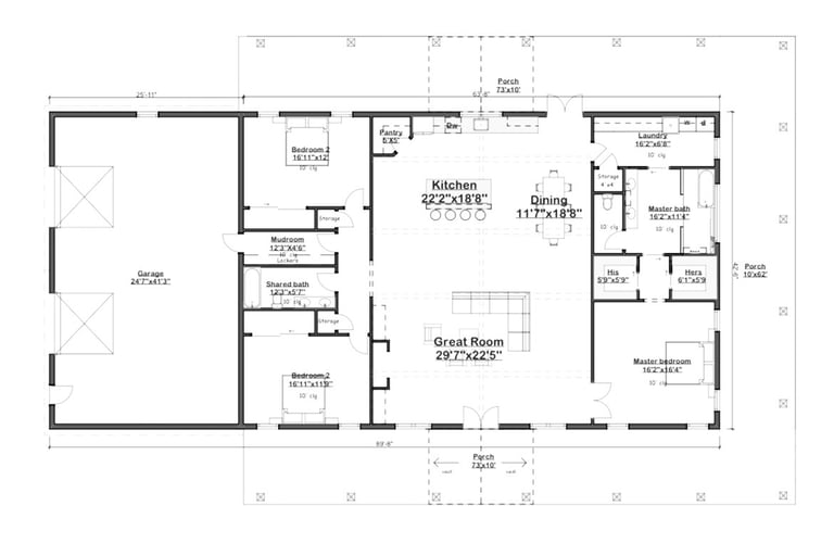
The Alachua Plan
Details
3 Bedrooms
2 Bathrooms
2,583 SQ FT Conditioned
2,080 SQ FT Porches
1,014 SQ FT Garage
$607,800 Wood Framing
$636,185 Cold Form Steel Framing
Design
Site Specific Engineering
Plumbing
Electrical
HVAC
LVP Flooring
Quartz Countertops
Wood Cabinets
Smooth Finish Drywall
Sherwin Williams Paint
Exterior Framing
Interior Framing
Siding
Roofing
Zip System Sheathing
Concrete
Vinyl Windows
Fiberglass Entry Doors


