











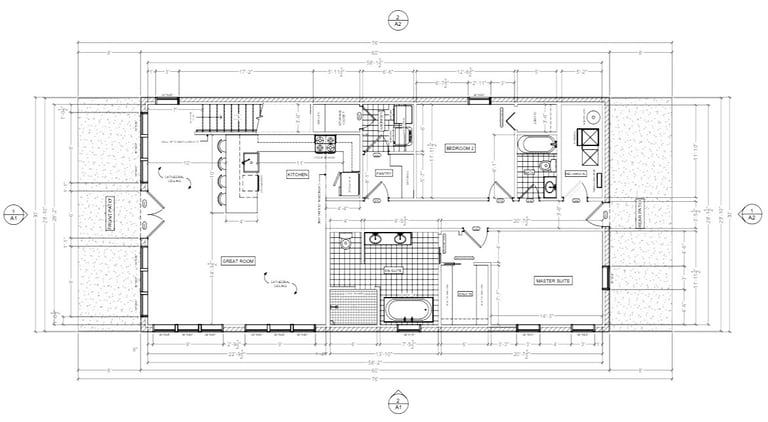
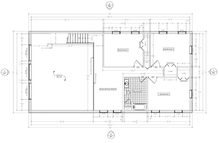
The Hartwell Plan
Details
5 Bedrooms
3 Bathrooms
3,048 SQ FT Conditioned
$453,120 Wood Framing
$468,360 Cold Form Steel Framing
Design
Site Specific Engineering
Plumbing
Electrical
HVAC
LVP Flooring
Quartz Countertops
Wood Cabinets
Smooth Finish Drywall
Sherwin Williams Paint
Exterior Framing
Interior Framing
Siding
Roofing
Zip System Sheathing
Concrete
Vinyl Windows
Fiberglass Entry Doors


